top of page
IMG_0769.HEIC

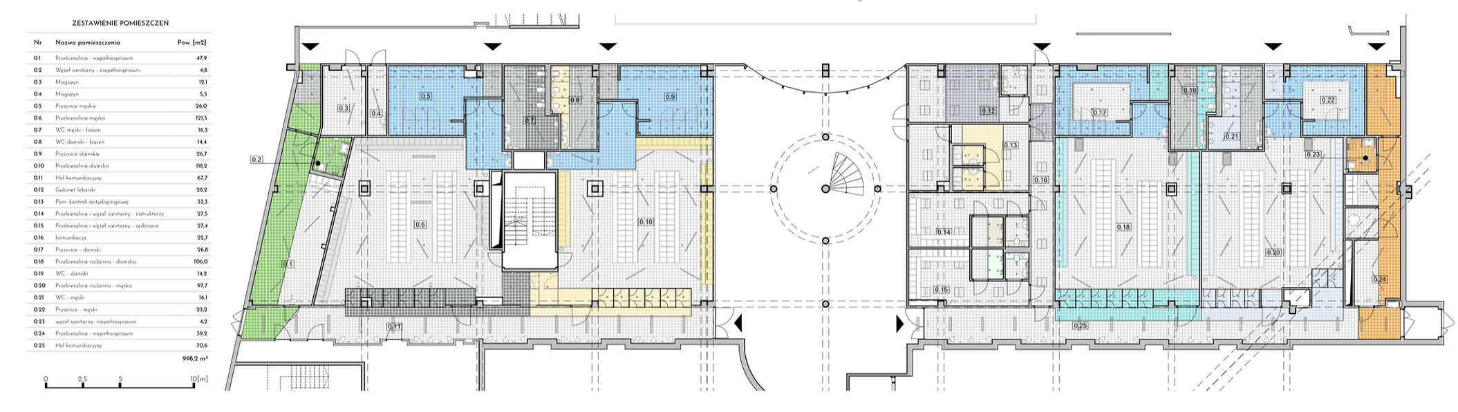
Aquasfera szatnie basenowe

Projekt koncepcyjny

Projekt budowlany

Projekt wykonawczy

 

etap I (skończony) i etap II (skończony)

1_edited.jpg
1_edited.jpg
widok z korytarza v3.png
1_edited.png
widok 3.jpg

WIZUALIZACJE

Image48.png
Image49.png
Image3.png
Image45.png
Image13.png
IMG_0808.HEIC
IMG_0861.HEIC
IMG_2213.HEIC

ZDJĘCIA REALIZACJI

IMG_0944.HEIC
IMG_0933.HEIC
IMG_0905.HEIC
IMG_0852.HEIC
IMG_0887.HEIC
IMG_0877.HEIC
IMG_0843.HEIC
IMG_0769.HEIC
IMG_0739.HEIC
IMG_0741.HEIC

©2014-2025 atomlab

bottom of page